Lehigh Avenue developer scheduled to return in June

| 25 May 2018 | 10:59

By Frances Ruth Harris
— The owner of a controversial business at 191 Lehigh Avenue in Chester is expected to return to the planning board next month.
The board rescheduled its review of Joel Schreiber's application shortly before he was to appear before the board on Wednesday night, May 16.
"They were asked to provide a site plan, it wasn’t ready, and they scheduled to be on the next agenda," town Supervisor Alex Jamieson told The Chronicle.
The next planning board meeting will be held at 7 p.m. on Wednesday, June 6, at town hall, 1786 Kings Highway.
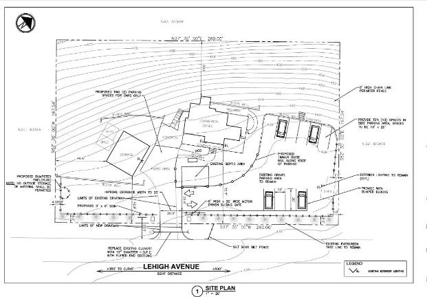
A site plan of 191 Lehigh Avenue posted on the town's site (chester-ny.gov) was taken down this week.
Residents in the area have complained for a year about overflowing dumpsters, noise, truck traffic, and bales of wiring stored outside under a blue tarp — all done, they say, in violation of town code.
Schreiber is the fourth owner of the 1.2-acre site in a year. The zoning board of appeals last year denied the owner's request for a variance to conduct the business, which would require five acres to conform to town code. Some residents are asking why the business had continued to operate as if it were not denied a variance.
The town's building inspector, James Farr, recommended that the business continue. He said in a May 14 letter that a professional office had been established on the property before 1974 and continued to operate up to the present. The neighbors say this is not true.
Several residents expressed alarm at the idea that town officials will not be able to manage a major development like the Greens of Chester, a 461-unit residential subdivision now under construction, if a small project like the electrical business is allowed to flout the town's rules.
"How can we trust building inspector & engineer to make sure Greens of Chester follow all codes when they can’t control just one parcel???" asked Mary Conway Luciana on Facebook.
Related stories "Illegal electrical business is being pushed through, neighbors say:" https://bit.ly/2Gs2X5u
"'The use may continue' at 191 Lehigh Avenue": https://bit.ly/2wT5ma2
"Residents riled by trash, noise": https://bit.ly/2IjnjnF
"Two sides disagree: Is electrical contracting business illegal?" https://bit.ly/2Gl2SAC
"Greens will 'cripple' school district, county executive says": https://bit.ly/2KmKf1N